东莞市大岭山镇下高田村是大岭山推动“百千万工程”打造后进村赶超发展样板。2023年,该村以激发集体经济发展活力作为突破方向,以加快现代化产业园改造升级为抓手,全力推进下高田“120亩工改工”项目。下高田村进行产业结构调整,积极培育开发新的经济增长点,努力打造农村发展新引擎。
1月10日,记者从东莞市大岭山镇了解到,2024年,下高田村计划升级村住宅区巷道,升级改造小广场游乐场,改善美花林路和工业路道路停车管理,坚持抓好河湖管理等工作,打造一河两岸优美生态环境,建设更高质量的水环境。
实力提升,为村经济高质量发展安装新引擎
大岭山下高田村是水库移民村,面积0.5平方公里。多年来,村集体收入来源单一,依赖物业出租,缺乏新的增长点。近几年来,在镇党委、镇政府正确领导下,下高田村党支部带领村民迎难而上,寻找经济发展的对策。利用自留的10亩土地建成下高田工业大厦,年增收450万元;出租30亩地,建成了中安科技产业园带来了250万元集体年收入。此举促进了村经济发展,更以“百千万工程”为契机,焕发出当代乡村经济新面貌。
下高田村党总支书记蔡学彬表示,2023年,迎着“百千万工程”带来的机遇,下高田村大力推动经济高质量发展,消除自身资源经济薄弱环节,实施旧工业区改造计划,主推下高田“120亩工改工”项目建设,打造高质量产业空间。改造后,预计下高田可增加年收益达1200万元,村集体经济实力将得到提升。
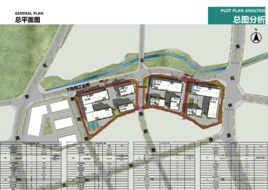
根据下高田村“120亩工改工”项目的范围图可以了解到,目前这里是平矮简易结构的厂房,下高田村实际可利用土地面积只有0.2平方公里,也就是300亩,120亩的地块占村内可利用土地面积40%,但是旧厂房过去的产出收益只有350万元,占年总收益27%,严重局限村经济发展。下高田村村民在尝到了利用10亩土地建成下高田工业大厦年增收450万元的甜头后,对于新的改造项目十分支持。据了解,项目改造后预计下高田年总收益达1200万元,增加300%以上。

据悉,下高田村120亩“工改工”项目计划引进深圳市美斯特光电技术有限公司投资建设,该公司拥有100多项国内外专利,通过“国家高新企业”的认定,获得UL目击实验室,并取得“广东省LED半导体照明工程技术研究中心”称号,集团总部将进驻东莞市大岭山镇,项目预计投资10.5亿元,建设17.36万平方米研发生产基地,投产后预计年产值约6亿元,将为下高田村的高质量发展安装新引擎。
旧貌换新颜,提升村人居环境形象
下高田村除了考虑增加集体经济,还把“消薄”放在重要位置。下高田村这一片临街的商住楼已有30年历史,目测外墙已有瓷片脱落,甚至开裂,影响着村容村貌。目前这片楼房已被列入下高田村旧商住楼“平改坡”项目。这是项目的规划效果图,将以焕然一新的面貌呈现。
蔡学彬表示,根据大岭山镇“百千万工程”深入推进人居环境改造工作方案,以下高田旧商住楼改造项目为首要示范改造点,统一外立面风貌和颜色对旧商住楼进行“平改坡”改造及灯光提升形成特色主干街道,提升下高田村人居环境形象。项目计划于2024年春节后进行动工建设。
除了以旧商住楼改造项目提升村人居环境形象,2023年,下高田村对村出入口没有贴瓷砖的居民屋外墙进行涂鸦美观,进一步提升了村容村貌。另外,以美花林、工业路升级改造为契机,沿路对企业出入口、车辆乱停乱放、“三线”治理、生活垃圾处理等开展人居环境整治和乡村风貌提升。利用下高田排渠整治为契机打造下高田村小广场项目,并成功连接了村内美化林路和莞长路道路,极大地方便村民出行,同时改善了停车位稀缺问题。
2023年,下高田村拆除原大地小学旧址,打造了休闲娱乐、停车于一体的下高田停车场项目,丰富了村民的出行和生活空间,据统计,2023年下高田村新增50个停车位,为“百千万工程”增添色彩。
2024年,下高田村计划升级村住宅区巷道,升级改造小广场游乐场,改善美花林路和工业路道路停车管理,坚持抓好河湖管理等工作,打造一河两岸优美生态环境,建设更高质量的水环境。下高田村将认真落实大岭山镇“百千万工程”工作部署,努力打造消薄示范区,聚力推动高质量发展。
干群齐心力量大,“百千万工程”动力强,集体经济活力足,乡村振兴步伐稳。下高田村力争2025年总收入1500万元,纯收入1100万元,全力助推“百千万工程”落地见效。

